北京英特威迅建筑裝飾工程有限公司創建于2008年,專業從事工程裝修全案設計及施工,
已承接工程案例3000余項,涉及辦公、醫院、學校、商業、酒店、博物館、別墅等場所的裝修設計、
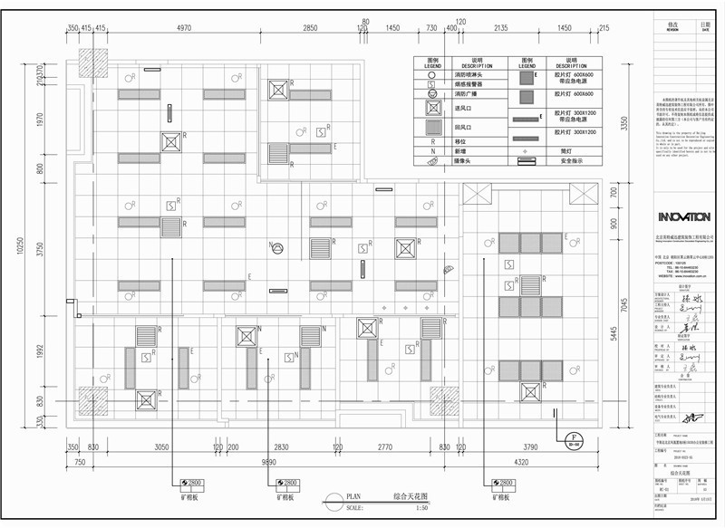
施工及消防系統、空調統、弱電系統、智能化系統等項目。
2018年6月15日,亨斯邁辦公室裝修項目已順利竣工。

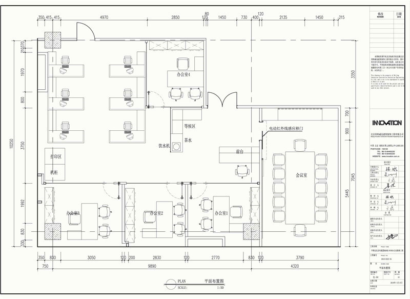
據悉,此項目位于北京市朝陽區鳳凰置地廣場,項目面積130平米,此項目為辦公室改造,項目的順利竣工,離不開甲方的大力支持和公司各部門的相互協作和配合,在這個工期緊、任務重的嚴峻的考驗下,英特威迅如期交出了一張漂亮的答卷,深受甲方領導和同行的高度認可。

亨斯邁項目主要包括前臺、背景墻、會議室、老板辦公室、開放式辦公室、財務室等一系列辦公空間的設計和施工。整體設計風格以白色為主,白色可以從視覺上增加內部空間感,從板材的設計到選定都是遵循綠色、環保、高端、品質。綠色空間,所有全新生態生活的起點,空間與自然的交融,英特威迅在綠建創新的大潮中,為客戶全程提供綠色建筑整體解決方案,傾心打造精品工程。
